





























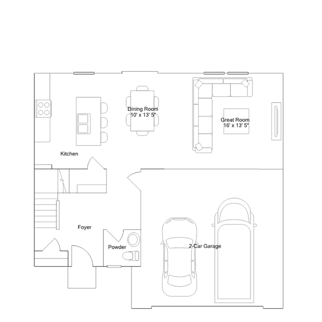
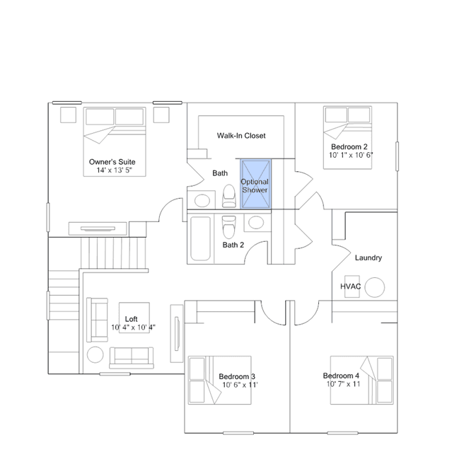
The Great Room, kitchen and dining room share a convenient and contemporary open floorplan on the first level of this two-story home, which also features a two-car garage at the front. A versatile loft and all four bedrooms occupy the second level, including the luxe owners suite comprised of a restful bedroom, en-suite bathroom and large walk-in closet.