
































Images coming soon
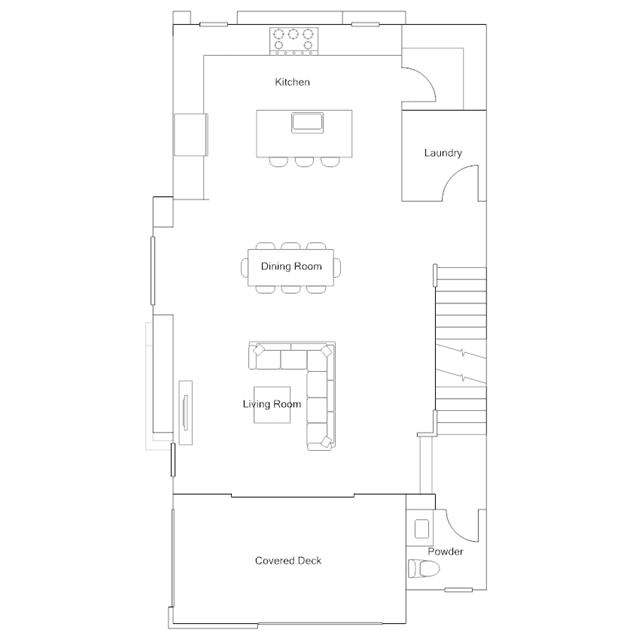
A secondary bedroom suite with an attached private bathroom and walk-in closet occupies the first level of this two-story home, ideal for overnight guests, household members that need more privacy or a home office. Upstairs, the living room, kitchen and dining room flow into one another through an open-concept design while sliding glass doors lead to a covered deck. Three more bedrooms and a loft are situated on the top level, including the luxe owners suite with a spa-inspired bathroom and walk-in closet.