

























Images coming soon
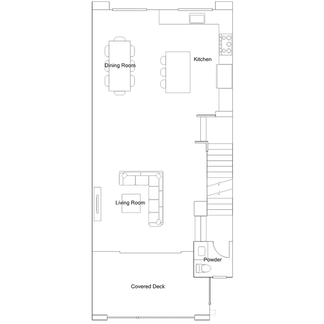
The first level of this three-story townhome is host to a secondary bedroom suite with a private bathroom and walk-in closet, ideal for overnight guests, household members that need privacy or a home office. The living room, kitchen and dining room are situated among a convenient open floorplan on the second level, with access to a covered deck through sliding glass doors. Two more bedrooms occupy the top floor, including the luxe owners suite with a spa-inspired bathroom and walk-in closet.