hero-image-0
hero-image-1
hero-image-2
hero-image-3
hero-image-4
hero-image-5
hero-image-6
hero-image-7
hero-image-8
hero-image-9
hero-image-10
hero-image-11
hero-image-12
hero-image-13
hero-image-14
hero-image-15
hero-image-16

105 HAL NORTON WAY

By

Lennar

   |   

Cielo Gardens - Welton Collection

Cielo Gardens - Welton Collect...
Sold
Sold
3
3
1
1,189
105 HAL NORTON WAY details
105 HAL NORTON WAY is now sold.
Check out available nearby homes below.

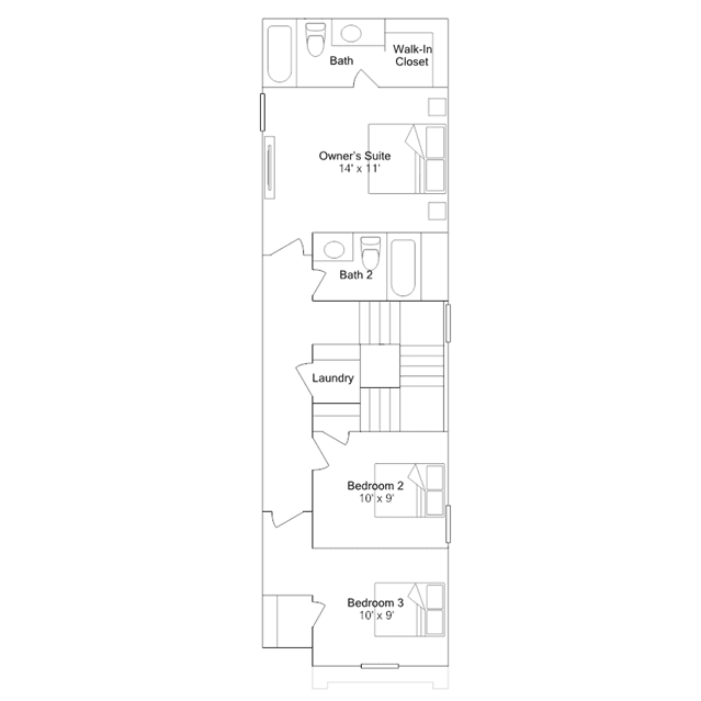
Floor plan

Sold
VIRTUAL TOUR

Baja

Cielo Gardens - Welton Collection

This new two-story home features a modern, open-concept design that maximizes the footprint of the interior. The U-shaped kitchen overlooks a family room ideal for entertainment and relaxation, with a rear door connecting to the backyard. Two upper-level bedrooms provide restful accommodations, while at the opposite end of the hallway is the private owners suite with an attached bathroom and walk-in closet.