




















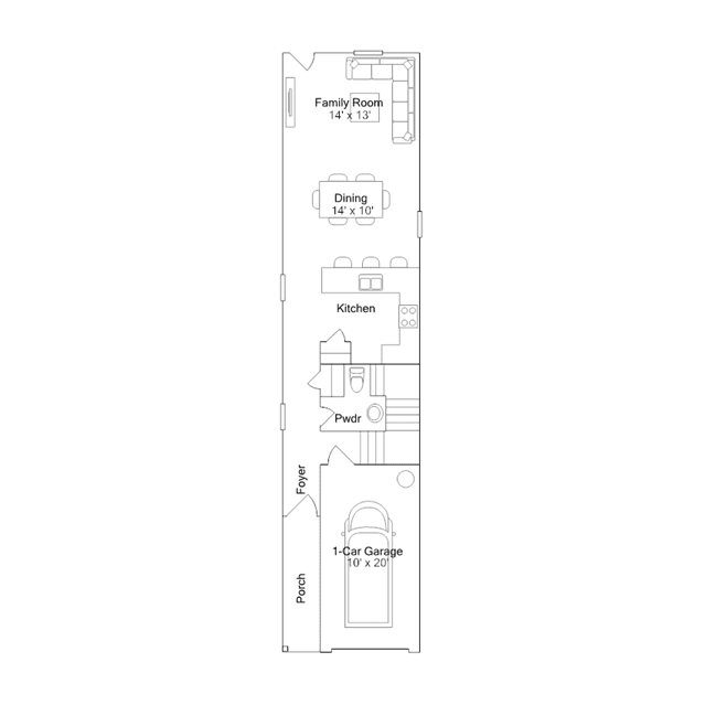
Upon entry of this new two-story home is a well-equipped kitchen, dining area and family room arranged in a desirable open floorplan that promotes seamless transitions between spaces. The second level showcases all four bedrooms to provide restful retreats, including the owners suite with an adjoining bathroom and walk-in closet. Completing the home is a practical garage for storage space.