































































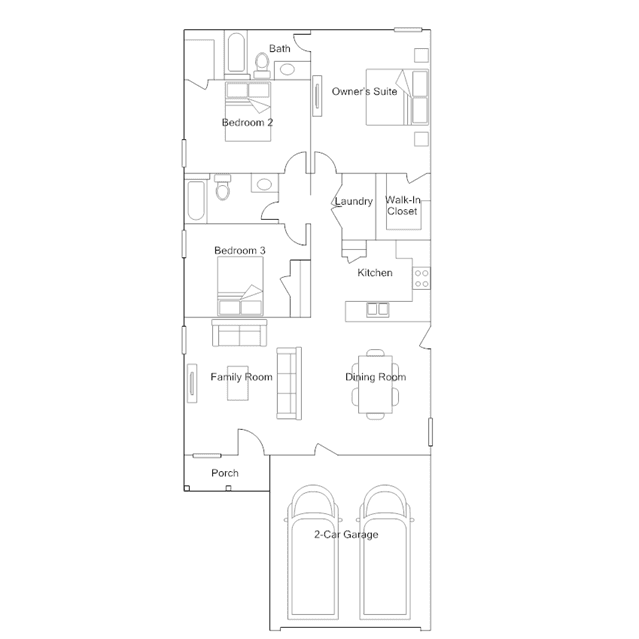
This single-story home has a smart layout that includes an owners suite with a full bathroom and walk-in closet, plus two additional bedrooms share a bathroom accessed in the hallway. The open floorplan at the front of the home includes a comfortable family room, dining area and open kitchen with a convenient island.