




























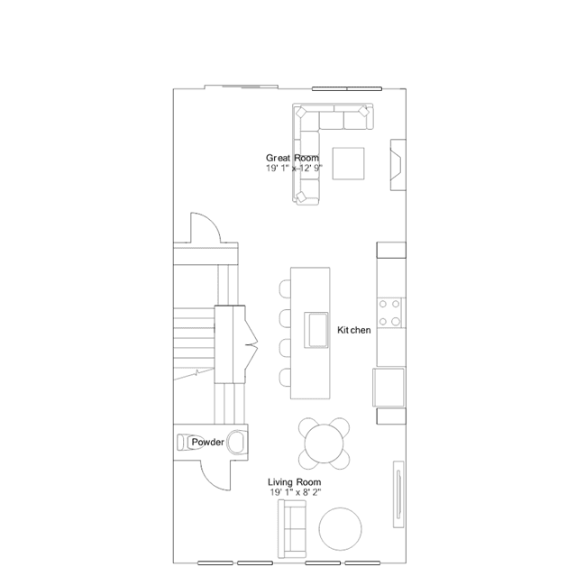
The first level of this three-story townhome is host to a rec room/flex space and powder room. Upstairs, the living room, kitchen and dining room are situated among a spacious open floorplan, while all three bedrooms occupy the top level. Among the upstairs bedrooms is the owners suite, complemented by an en-suite bathroom and walk-in closet.