















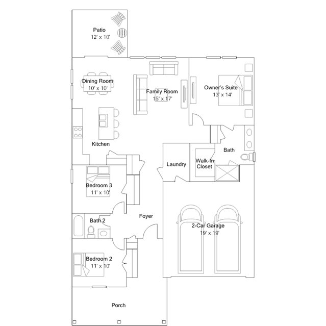
This single-story home features a contemporary open concept layout among the kitchen, family room and dining room that extends to the cozy outdoor patio. Near the foyer are two bedrooms, while the owners suite is featured on the other side of the home for privacy. An optional second floor adds a versatile bonus room for more shared living space.