





Images coming soon
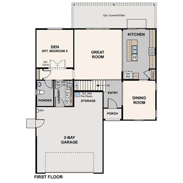
The Indigo boasts a beautiful open-concept layout designed with your comfort and convenience in mind. Main-floor highlights include a formal dining room with a dedicated passthrough to the kitchen, featuring a center island, pantry, and sliding glass door to the backyard. The kitchen also flows into an expansive great room. And completing the main floor, a secluded den-also available as a downstairs bedroom-overlooks the backyard. Upstairs, youll enjoy a versatile loft, along with two secondary bedrooms-sharing a full hall bath-and a lavish primary bedroom with a walk-in closet and en-suite bath. Additional options include an extra bedroom in lieu of the loft. 3 Bedrooms / 2.5 Baths / Dining / Den / Loft / 2 Bay Garage Opt. Covered Patio Opt. Bedroom 4 at Loft Opt. Bedroom 5 at Den Opt. Retreat at Bedroom 2 Opt. Tub at Primary Suite