























































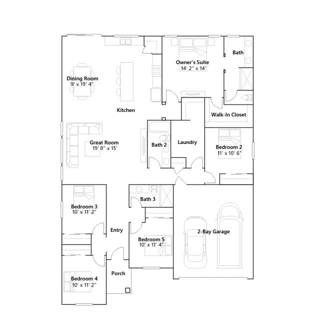
This single-story home has a smart layout that is perfect for growing families. Three bedrooms share a bathroom at the front of the home, while down the hall is the open concept living area, which features a Great Room, kitchen and dining room. Beside the living area is an additional bedroom and laundry room, while tucked into the back corner is the owners suite with a private bathroom and walk-in closet.