
































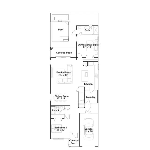
This expansive two-story villa exudes luxury with dual owners suites, one on each floor. The first floor features an open concept layout in the kitchen, dining room and family room leading to the covered patio and private swimming pool. Upstairs is a spacious loft, plus two bedrooms in addition to the top-level owners suite.
Stay informed with Livabl updates on new community details and available inventory.