































































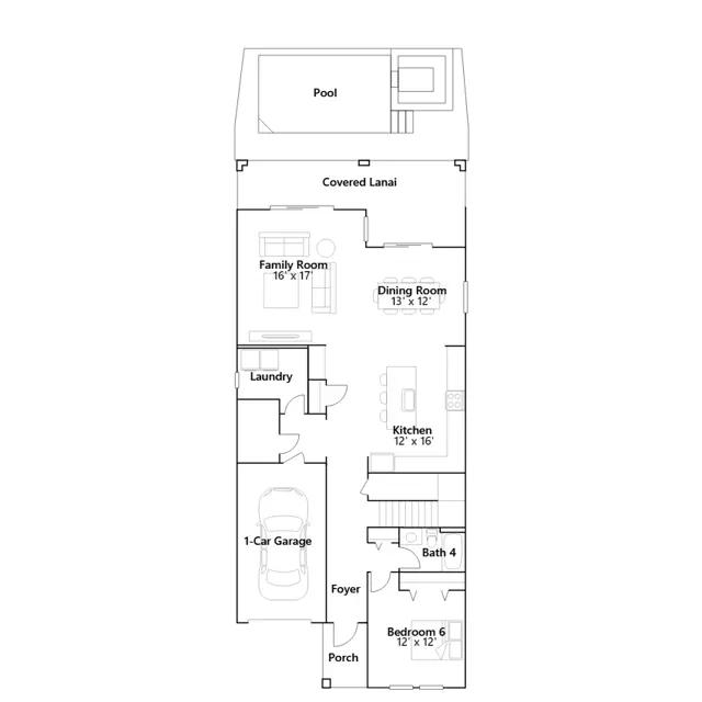
This two-story villa is the largest in the collection and offers dual owners suites on the second floor. The first floor features an open layout in the kitchen, dining room and family room with two separate entrances leading to the patio and private swimming pool. Upstairs are five bedrooms in total and a comfortable loft.
Stay informed with Livabl updates on new community details and available inventory.