

















Images coming soon
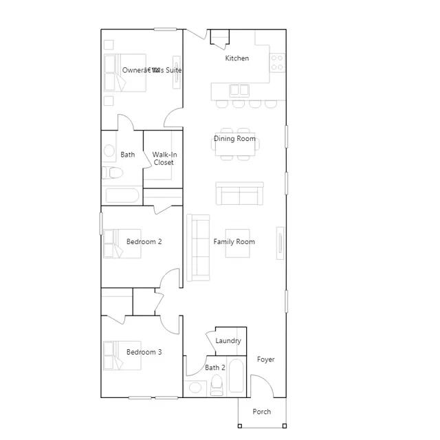
The family room, dining room and kitchen are arranged in a convenient open floorplan in this single-level home, offering seamless transition between spaces to help make multitasking simple. Three bedrooms complete this residence, including an owners suite with a private en-suite bathroom and generous walk-in closet.
Stay informed with Livabl updates on new community details and available inventory.