


















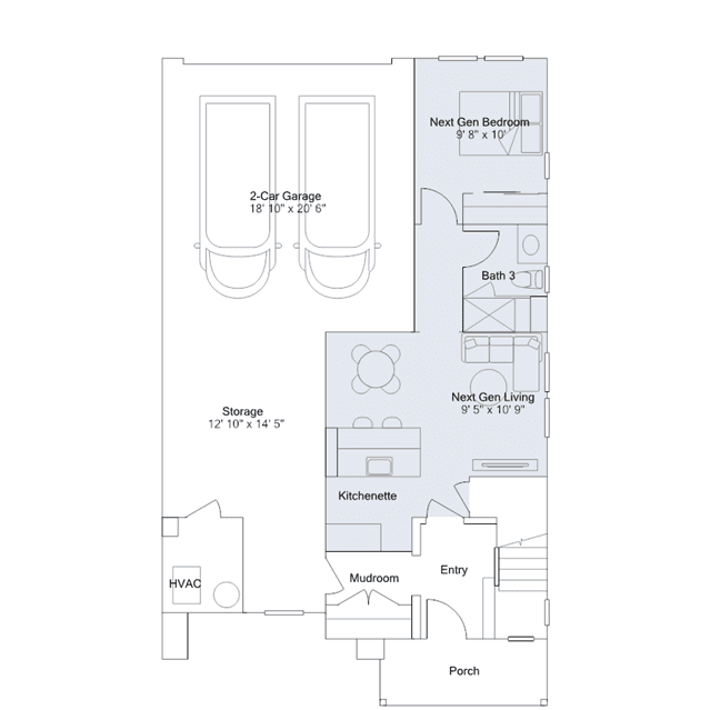
This new three-story home is a family-friendly haven with a secluded secondary bedroom on the first floor thats ideal for a family member who wants added privacy or for overnight guests. The second floor showcases a second-floor open-plan layout among a spacious Great Room, a kitchen with a large center island and a dining room as well as two balconies for indoor-outdoor living. The third floor hosts a versatile loft and three bedrooms including a luxe owners suite.