







































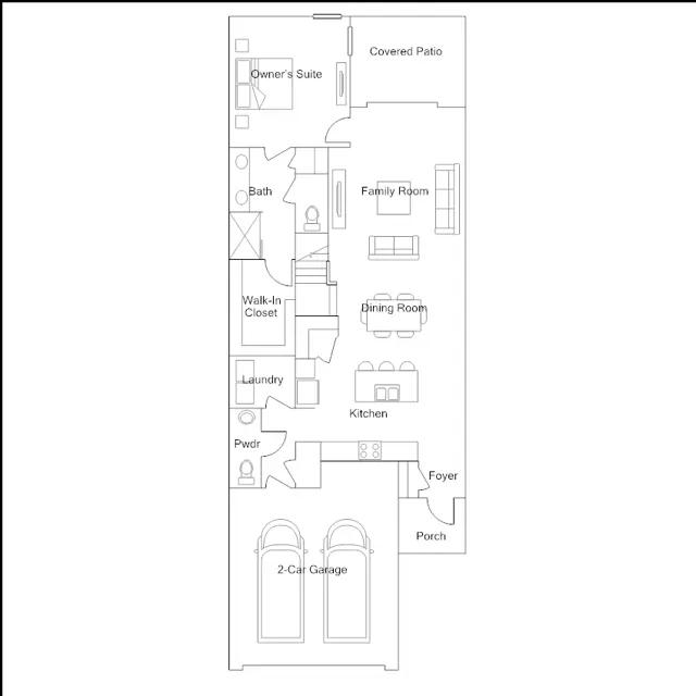
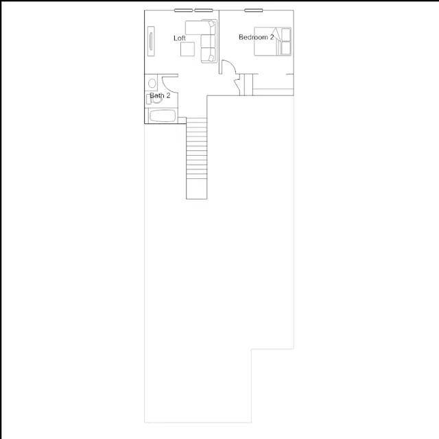
The collections largest home offers two-stories of intentional design. The two-car garage leads to the first levels open floorplan, which includes the kitchen, dining room and family room with a covered patio for outdoor entertaining. Nearby, the owners suite features a spa-like private bathroom. Upstairs is a versatile loft space and a convenient guest bedroom.
Stay informed with Livabl updates on new community details and available inventory.