





















































Get additional information including price lists and floor plans.
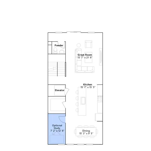
Designed for comfort and ease-of-living, this new and spacious townhome boasts a private elevator. Past the foyer is a spacious recreation room to grant versatile living space, while upstairs is the open-concept main living area. It showcases a modern kitchen with a large center island flanked by an airy dining area and a Great Room made for daily entertainment. On the top level are secondary bedrooms and a private owners suite complemented by an attached bathroom.
Stay informed with Livabl updates on new community details and available inventory.