





























































Get additional information including price lists and floor plans.
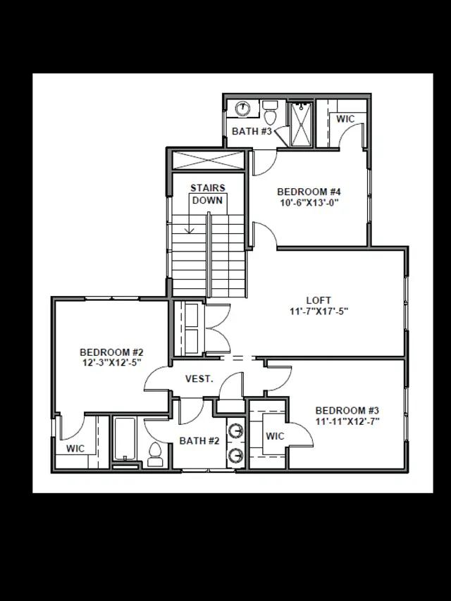
The Torren is a stunning, new home floor plan in Lehi's luxury master-planned community, Inverness. The two-story Torren has 4 bedrooms, 3.5 bathrooms, and a 3-car garage. Buyers can choose between transitional or farmhouse elevations. Both gorgeous styles feature large windows that bathe the home in natural light. The Torren features its primary bedroom on the main floor, with an additional three bedrooms upstairs. On the first floor, a covered porch leads to an entry. The home then opens majestically to an open-concept family room with a fireplace and vaulted ceilings, and a kitchen with large island and luxurious butler pantry. A dining room completes the main living space. Also on the main floor, a primary bedroom features a large walk-in closet and en suite bathroom with a separate bathtub, shower and water closet. The home can also be accessed from th...
Stay informed with Livabl updates on new community details and available inventory.