














Images coming soon
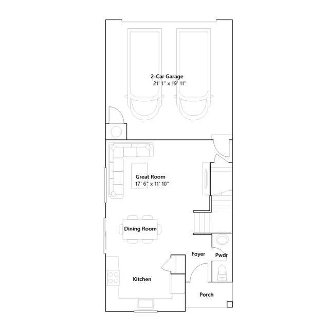
This new cottage-style home boasts a spacious design with an open-concept layout on the first floor, combining the kitchen, living and dining areas to simplify everyday transitions and multitasking. On the second floor are three bedrooms, including the lavish owners suite at the front of the home, complete with an en-suite bathroom and walk-in closet. A two-bay garage completes the home.
Stay informed with Livabl updates on new community details and available inventory.