
































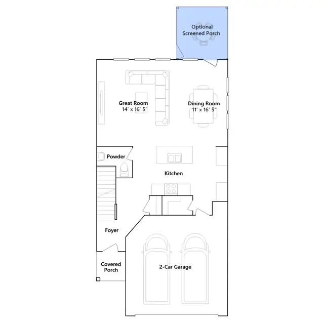
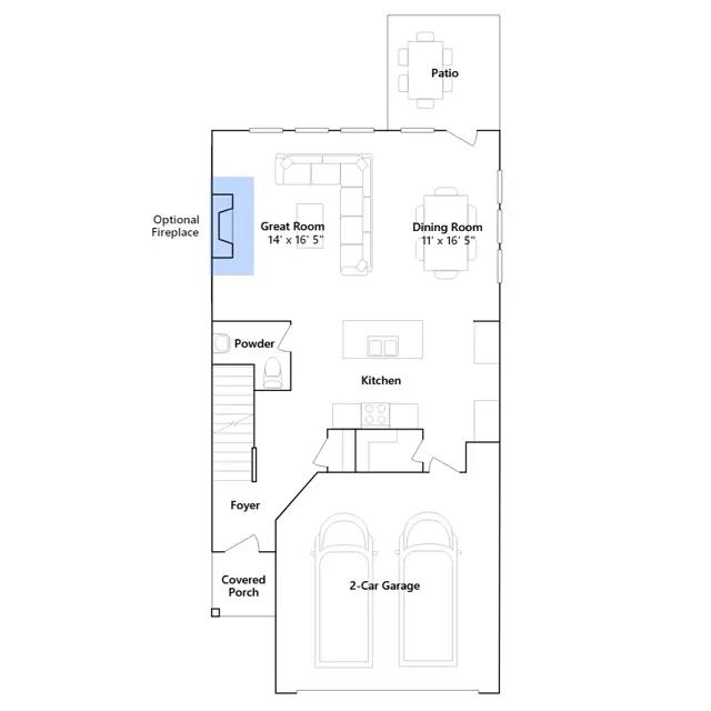
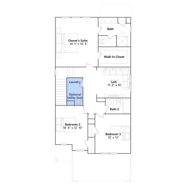
This new two-story home is ready for modern lifestyles. A convenient, covered porch by the front door is great for a sitting area or package drop-off. The first floor is host to an inviting open-concept floorplan that blends the kitchen, living and dining areas, with a nearby back patio ready for outdoor entertainment and leisure. Luxury vinyl plank flooring extends throughout the first floor. Off the kitchen is a powder bathroom for guests to freshen up. Natural light extends throughout the great room and kitchen thanks to the surrounding windows. The kitchen is complete with granite countertops, tile backsplash, and stainless-steel appliances, as well as a spacious island and undermount sink. All three bedrooms are located on the second floor to maximize comfort and privacy, including a lavish owners suite with a full bathroom and walk-in closet, surrounding a ...
Stay informed with Livabl updates on new community details and available inventory.