


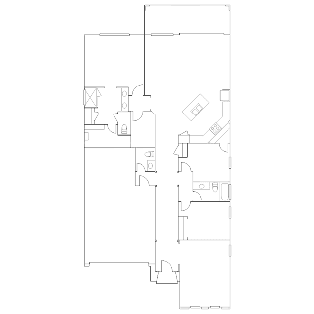
This spacious single-story is designed for convenient, comfortable living. Toward the front is a living room, perfect as a media space or reading area, while the foyer leads to an open floorplan among the kitchen, dining room and Great Room with patio access. The owners suite is situated toward the back for increased privacy, while two additional bedrooms sit near the front.