
















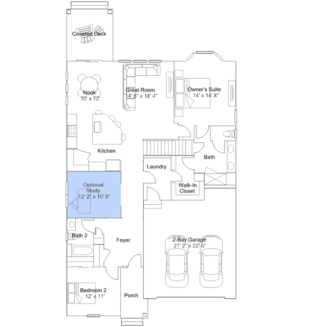
This new single-story home design is the epitome of casual elegance. It features an open-plan layout among the Great Room, kitchen and nook, which has sliding-glass doors leading to a covered deck for outdoor living. The owners suite includes a spa-inspired bathroom and a walk-in closet with a door to the laundry room. Two secondary bedrooms provide restful retreats for family members or guests.