




































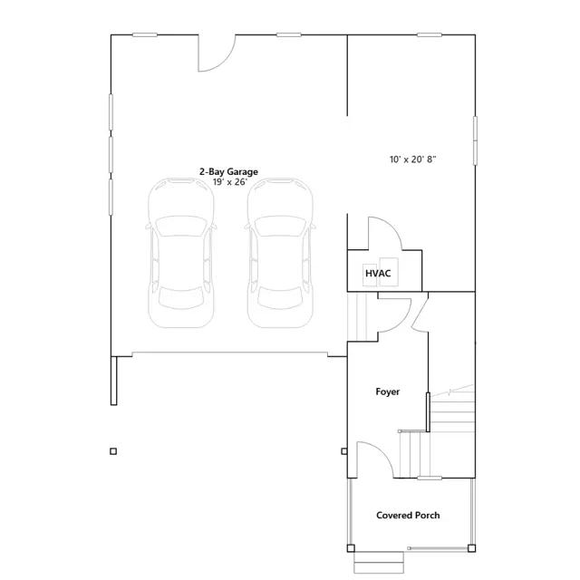
The first level of this three-story home is host to a two-bay garage with additional storage space. Upstairs, the kitchen, dining room and Great Room are situated among a convenient and contemporary open floorplan with access to a deck for indoor-outdoor living and entertaining. All three bedrooms are found on the homes top level, including the luxe owners suite comprised of a restful bedroom, en-suite bathroom and walk-in closet.
Stay informed with Livabl updates on new community details and available inventory.