































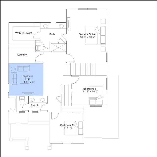
The spacious Great Room, kitchen and dining room are arranged in a convenient and contemporary open-concept design on the first level of this two-story home, promoting effortless transition between spaces and making multitasking simple. Four bedrooms occupy the second level, including the expansive owners suite.