








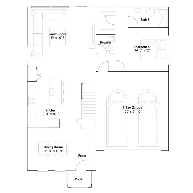
The first level of this two-story home is host to a spacious open floorplan shared between the Great Room and kitchen, with sliding glass doors that lead to the outdoor space. The dining room is situated off the foyer, while a secondary bedroom with en-suite bathroom at the back of the home is ideal for overnight guests or household members who need privacy. Four more bedrooms, including the luxe owners suite, surround a versatile loft upstairs.