





















































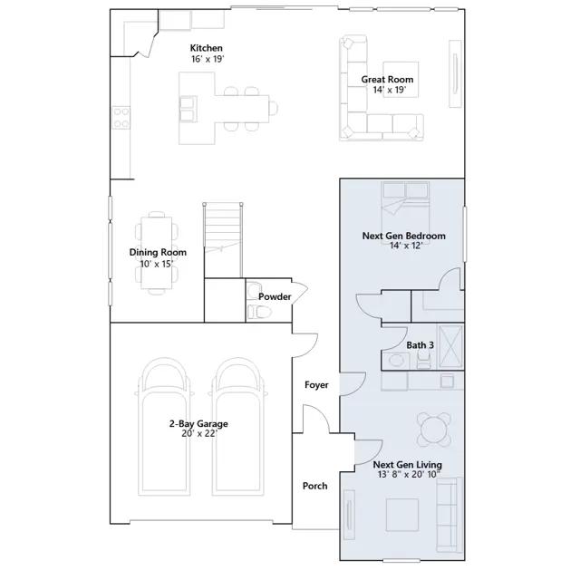
This new two-story home features Lennars Next Gen suite, providing a private space complete with a separate entrance, bedroom, living area and more to encourage seamless independent living. The first floor is host to an inviting open-concept floorplan consisting of the kitchen, living and dining areas. Upstairs, three bedrooms boast convenient access to a versatile loft, including the luxe owners suite with an en-suite bathroom and generous walk-in closet.
Stay informed with Livabl updates on new community details and available inventory.