



























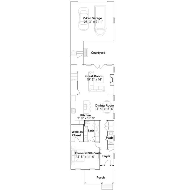
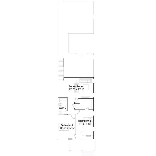
The first level of this two-story townhome is host to a generous open floorplan where the Great Room, kitchen and dining room share a footprint, offering access to a courtyard through double doors. The owners suite is situated just off the foyer, complete with an en-suite bathroom and a walk-in closet. A versatile bonus room providing additional shared living space can be found on the second floor, along with two secondary bedrooms.
Stay informed with Livabl updates on new community details and available inventory.