


























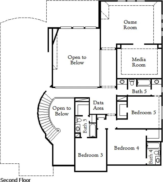
The Dimmit floor plan is an elegant two-story home featuring five bedrooms and five-and-a-half bathrooms, perfectly designed for luxurious living. This layout offers an ideal balance of open-concept and private spaces, catering to both entertainment and relaxation. The main level showcases a spacious family room seamlessly connected to a chef-inspired kitchen and casual dining area, creating a warm and inviting central hub. A generously sized primary suite with a spa-like ensuite bathroom and expansive walk-in closet provides the ultimate retreat. Additional bedrooms on the first floor ensure ample space for family or guests, while upstairs includes a versatile game room and private quarters. The three-car garage adds convenience and functionality. The Dimmit floor plan blends sophistication with practicality, making it a perfect choice for those seeking a home t...
Stay informed with Livabl updates on new community details and available inventory.