








































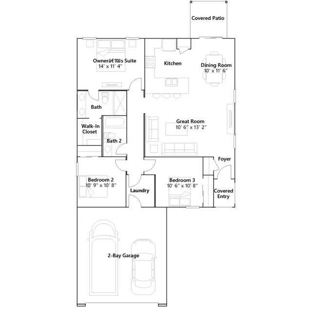
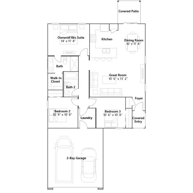
A spacious open floorplan serves as the focal point of this single-level home, allowing for effortless transition between the Great Room, kitchen and dining room. Sliding glass doors lead to a covered patio. The luxe owners suite is situated at the back of the home, comprised of a restful bedroom, en-site bathroom and walk-in closet. Two secondary bedrooms are comfortable and private spaces for household members or overnight guests.
Stay informed with Livabl updates on new community details and available inventory.