











































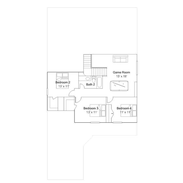
This two-story Next Gen home design is great for large families. The first floor includes an attached private suite with its own separate entrance, living room, bedroom, bathroom and kitchenette. In the main home is an open living area and an owners suite. Upstairs are three bedrooms and a versatile game room, that is great for kids and teenagers.
Stay informed with Livabl updates on new community details and available inventory.