



































Get additional information including price lists and floor plans.
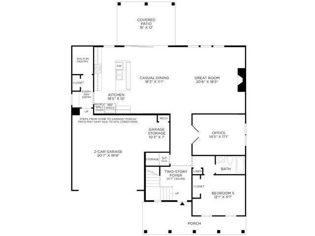
Stylish contemporary living. The Hillside's inviting covered porch and stunning two-story foyer open onto a bright flex room, spacious great room, and casual dining area with rear yard access. The well-designed gourmet kitchen is complete with a large center island with breakfast bar, plenty of counter and cabinet space, and huge walk-in pantry. The serene primary bedroom suite is enhanced by a lovely tray ceiling, gigantic walk-in closet, and deluxe primary bath with dual-sink vanity, large soaking tub, luxe shower with seat, and private water closet. Central to a generous loft, the sizable secondary bedrooms feature ample closets, one with private bath, two with shared hall bath. Additional highlights include a desirable first floor bedroom suite with closet and shared full hall bath, convenient everyday entry, centrally located laundry, and additional stor...
Stay informed with Livabl updates on new community details and available inventory.