
















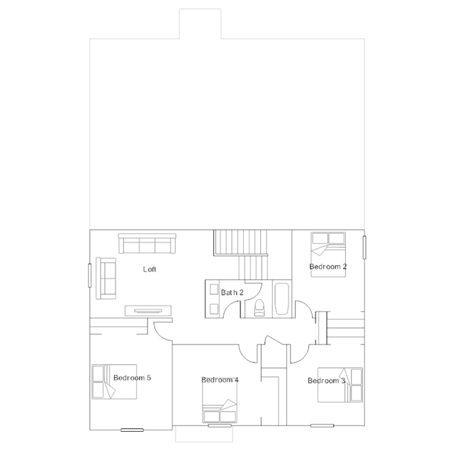
This two-story home features a smart layout that offers endless possibilities. A versatile den is attached to the foyer by the front door while down the hall is an open-concept living area with access to a patio. The owners suite is tucked into a corner of the first floor with a private bathroom and closet, while upstairs four bedrooms center around a loft.