

























































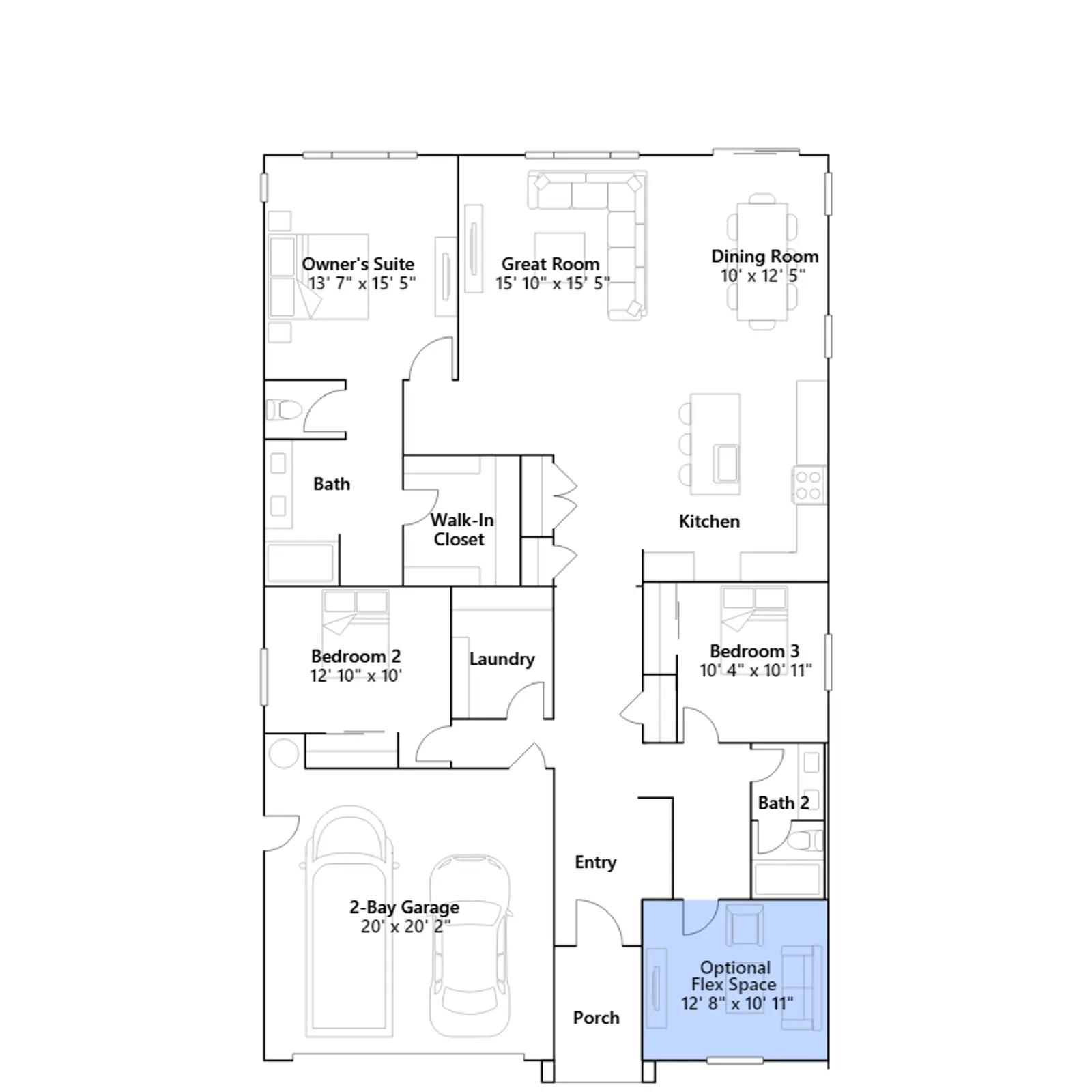
This new single-story home features three bedrooms secluded near the front of the home, offering a private retreat for guests and residents alike. An open-concept floorplan encourages seamless entertaining and multitasking between the kitchen, living and dining areas. Nestled into a rear corner is the lavish owners suite, complete with a full bathroom and walk-in closet.
Stay informed with Livabl updates on new community details and available inventory.