
























































































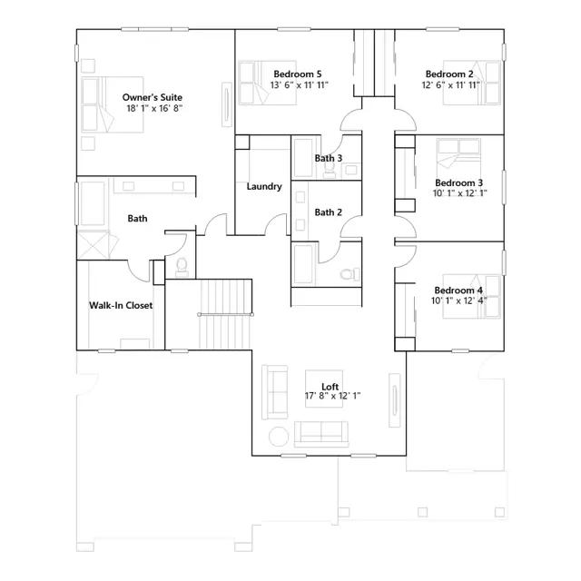
This two-story home showcases Lennars signature Next Gen suite, ideal for multigenerational living with a separate entrance, living space, kitchenette, bedroom with retreat, bathroom and laundry. In the main home, the Great Room, kitchen and dining room are arranged among a convenient and contemporary open floorplan. Five bedrooms surround a versatile loft upstairs, including the luxe owners suite which is comprised of a restful bedroom, en-suite bathroom and walk-in closet.