





































Images coming soon
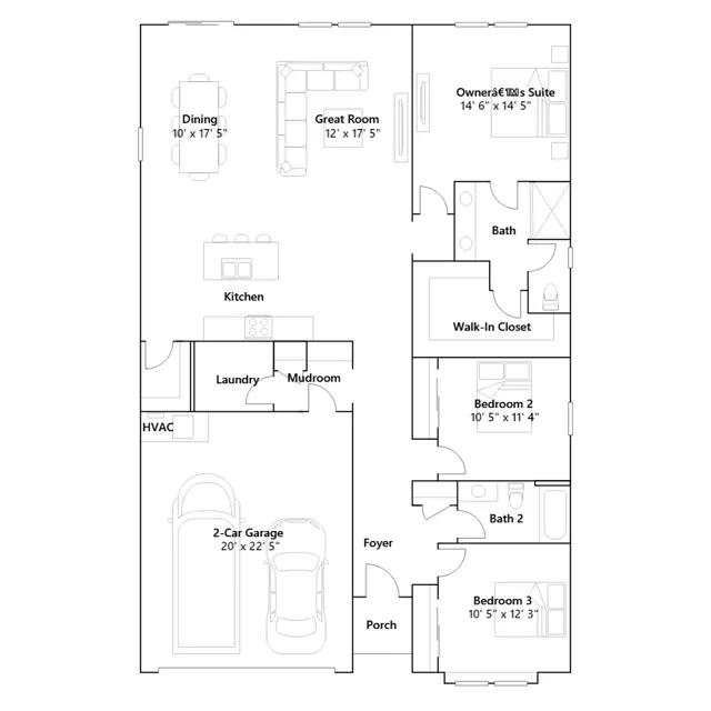
This single-story home features a modern open floorplan to maximize interior space, consisting of a chef-inspired kitchen, Great Room for entertaining and formal dining room. There are three bedrooms present in this plan, including the luxe owners suite at the back of home for added privacy, offering a spacious bedroom, spa-inspired bathroom and walk-in closet.