



























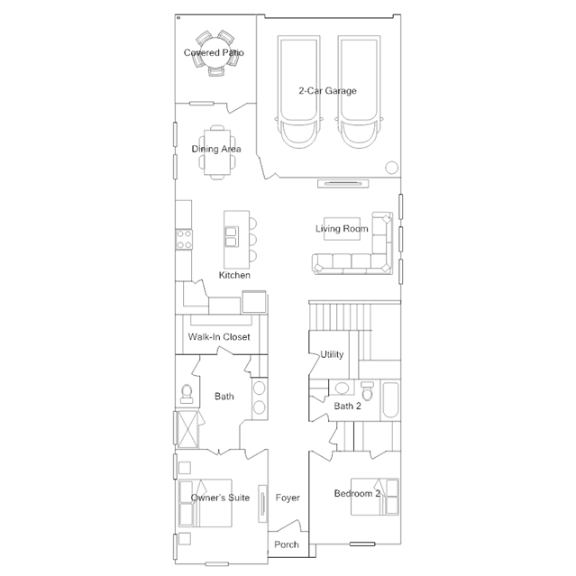
This two-story home has a smart layout that offers space and privacy. Two bedrooms are at the front of the home, including the owners suite which features a private bathroom and walk-in closet. Down the hall is the open concept living area which includes a covered patio in the back. Upstairs is a game room loft, as well as two bedrooms that share a jack-and-jill style bathroom in between.