





























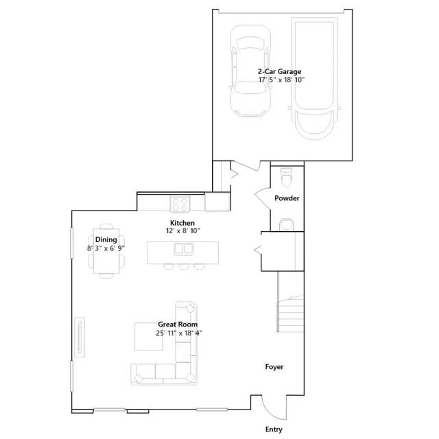
This new two-story townhome features impact-resistant windows and a rear two-car garage. A welcoming fenced-in courtyard grants access to the front door, where upon entry is a large open-concept layout comprised of the kitchen, dining area and Great Room, making it easy to entertain and multitask. On the second floor are three bedrooms, including the owners suite that sweeps across the front of the home, complete with an en-suite bathroom and walk-in closet.
Stay informed with Livabl updates on new community details and available inventory.