




















































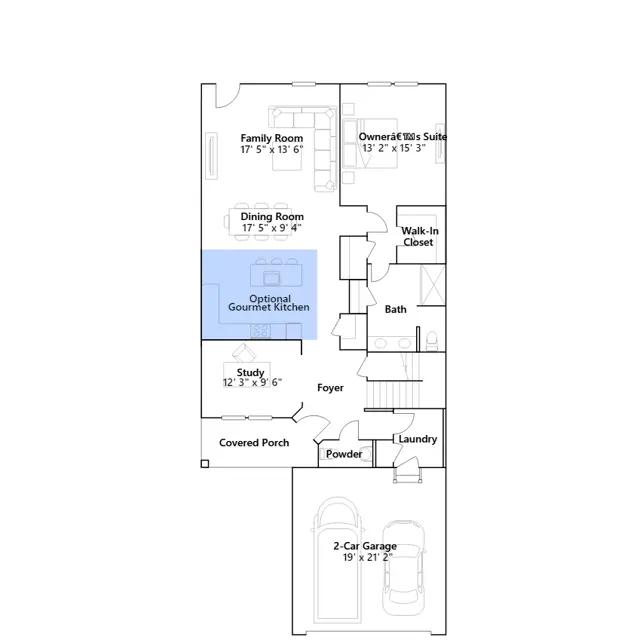
This new two-story townhome is designed to promote low-maintenance living with a sophisticated twist. On the first floor is everything you need day-to-day, featuring a private owners suite, a convenient study and an open-concept layout shared among the kitchen, dining room and spacious family room. The top floor presents a loft and two versatile bedrooms to customize as homeowners see fit.
Stay informed with Livabl updates on new community details and available inventory.