




















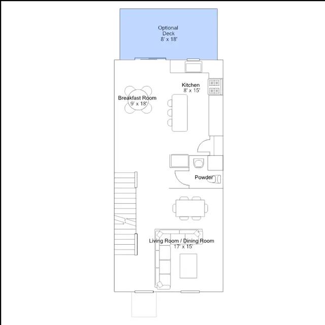
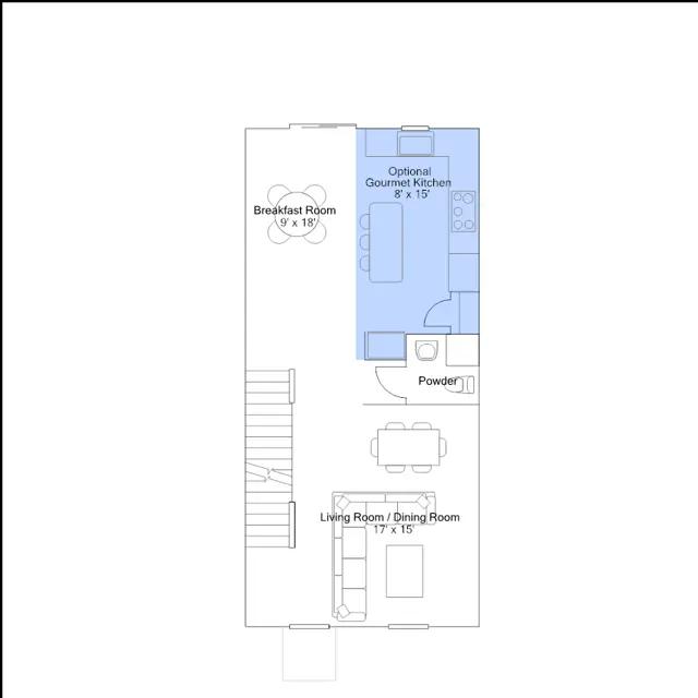
This three-story home features a first-floor flex space ready to be transformed off the entrance. Upstairs is an open concept living room/dining room with a kitchen and breakfast room, along with an optional deck. The top floor features the owners suite with vaulted ceilings and an extra bedroom.
Stay informed with Livabl updates on new community details and available inventory.