


























































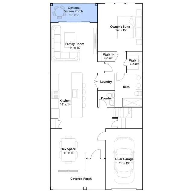
This two-story home is the largest plan in this collection. There is an open concept layout in the kitchen and family room with tall ceilings, along with a nearby flex room ready to be transformed for dining. Tucked away is the first-floor owners suite, while upstairs is a loft, two more bedrooms and an unfinished storage area for versatile needs.
Stay informed with Livabl updates on new community details and available inventory.