



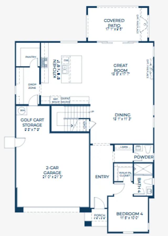
Experience exceptional design and spacious living in Plan 3, the largest floor plan in the Lotus Collection, offering approximately 3,129 sq. ft. of elegant, thoughtfully crafted space. Key Features: 2-car garage with dedicated golf cart storage Expansive open-concept great room, modern kitchen, and dining area that seamlessly connect to the outdoors Main-floor bedroom with private bath, ideal for guests or multi-generational living Upstairs loft offering flexibility as a secondary living area or optional fifth bedroom Each upstairs bedroom includes its own walk-in closet Luxurious primary suite with spacious layout and multiple storage areas Perfect for both growing families and avid entertainers, Plan 3 blends comfort, sophistication, and functionality. Source: Trumark Homes
Stay informed with Livabl updates on new community details and available inventory.