






















































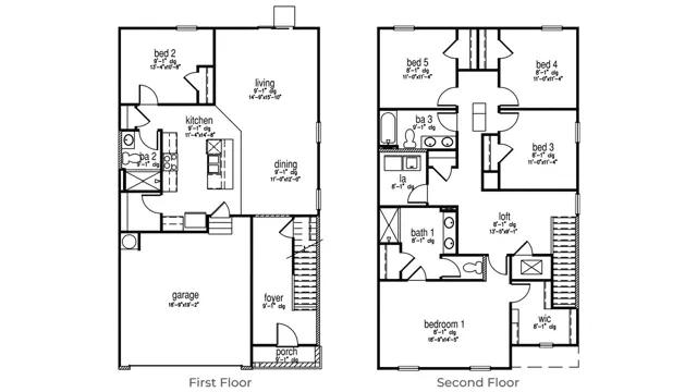
The Robie floorplan with it's open concept first floor, as well as a 1st floor guest suite is perfect for today's family. This 5BR,3 BA home also features designer packages with maple cabinets, low maintenance vinyl flooring throughout the first floor and Stainless Steel Appliances. Includes smooth-top electric range, microwave, & dishwasher. The 2nd floor offers an owner's oasis with walk-in shower, dual vanity and massive walk-in closet offering everything you could have hoped for in your new home! 3 additional bedrooms, shared bathroom and laundry room complete the second floor. All new homes will include D.R. Horton's Home is Connected package, an industry leading suite of smart home products that keeps homeowners connected with the people and place they value the most. This technology allows homeowners to monitor and control their home...
Stay informed with Livabl updates on new community details and available inventory.