



















































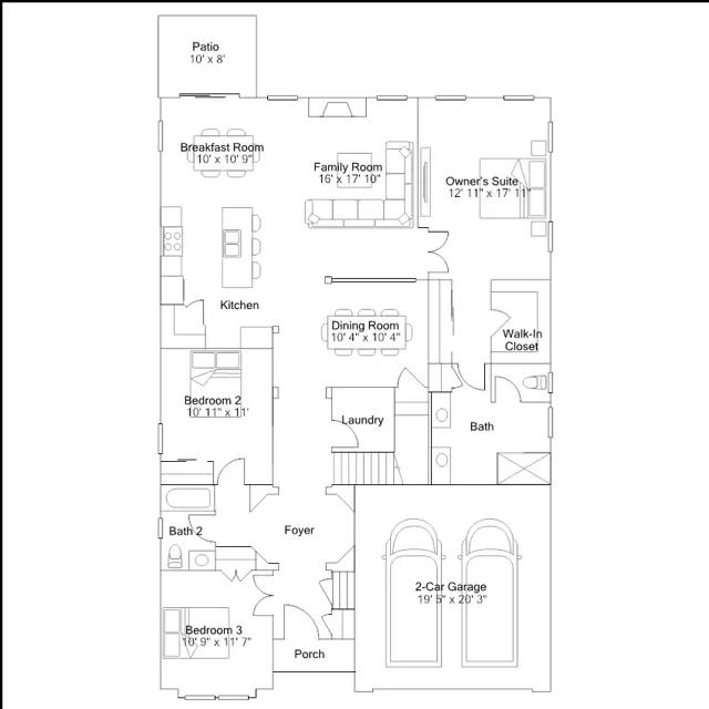
This spacious two-story home was designed with active adult homeowners (55+) in mind, offering the benefits of single-level living with the luxury of two floors. On the first floor is everything needed, showcasing an open concept main living area to promote seamless everyday living, as well as the owners suite. Completing the home is an upstairs loft and three extra bedrooms for a potential office or gym.
Stay informed with Livabl updates on new community details and available inventory.