









































































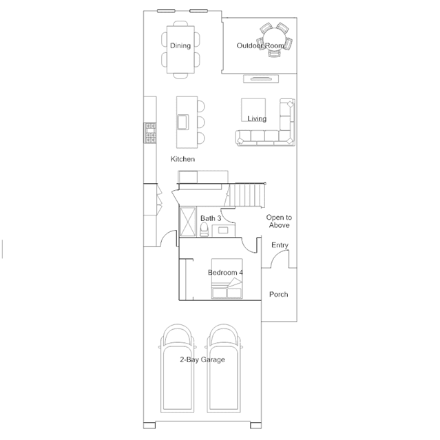
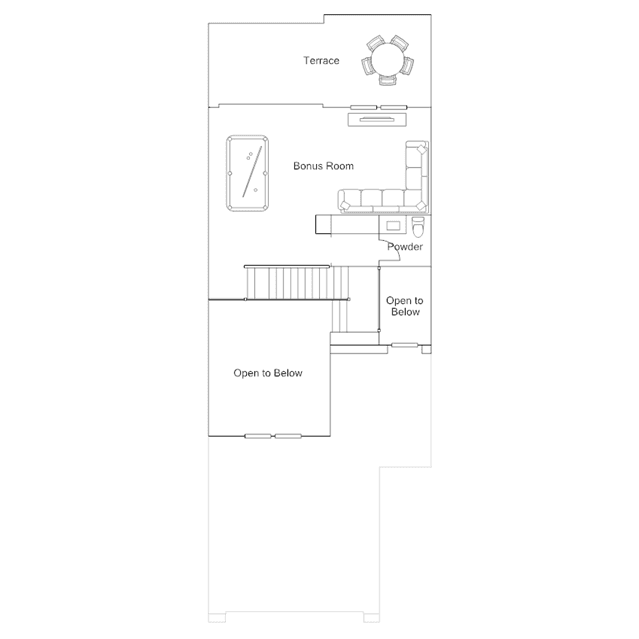
A generous open floorplan shared between the communal living and dining spaces is found on the first level of this three-story townhome, while a secondary bedroom provides a versatile space that can be used for overnight guests or even a home office. Three bedrooms surround a loft on the second level. The top level is host to a spacious bonus room with access to an outdoor terrace.