













































































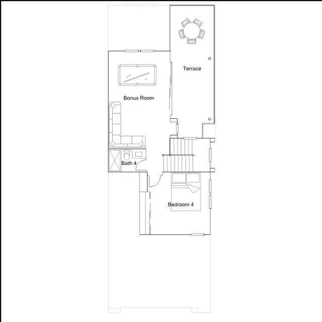
The first level of this three-story townhome features an open floorplan shared between the kitchen, living and dining rooms, and an office is the ideal spot for working remotely or a sitting room. Three bedrooms including the luxe owners suite surround the loft on the second floor, while the third floor is occupied by a bonus room, bedroom and outdoor terrace.