

































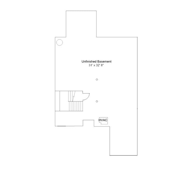
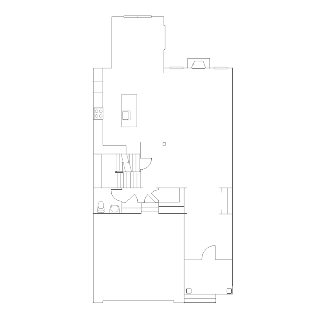
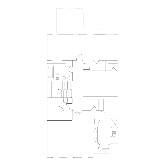
This two-story home offers a smart layout that makes good use of the available space. On the first floor is an open-concept Great Room that includes a cozy sunroom beside the kitchen. On the second floor are three bedrooms, including the owners suite which has a private bathroom and walk-in closet. Homeowners also have the option to include a finished basement at select homesites.