








































































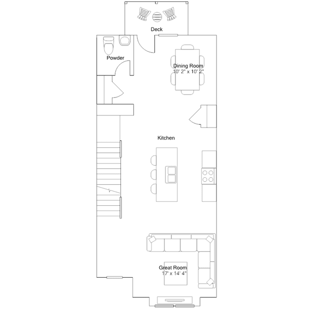
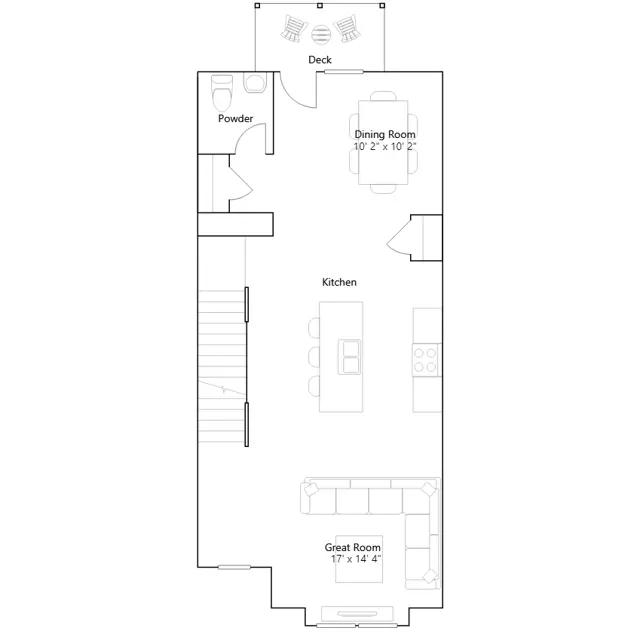
This new three-story townhome is designed for ease and comfort, with a secluded first-level bedroom. The second level has an open-plan main living area and a deck for sipping sweet tea. Both third-level bedrooms, including the luxe owners suite, have walk-in closets.