





























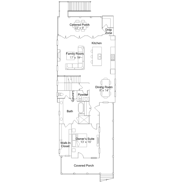
This expansive elevated home features a covered porch in the front and back of the home, ideal for outdoor entertaining or relaxing. There is an open space layout in the dining room, gourmet kitchen and family room, along with a luxe owners suite on the first floor. Upstairs is a loft surrounded by four bedrooms, including two bedroom suites.