









































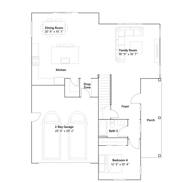
Off the foyer of this new two-story home is a bedroom near a full bathroom, leading to an open-concept layout perfect for everyday entertaining and multi-tasking. On the second floor are three bedrooms and a versatile loft, with the luxe owners suite tucked into a private corner with a spa-inspired bathroom and walk-in closet.
Stay informed with Livabl updates on new community details and available inventory.