











































































Get additional information including price lists and floor plans.
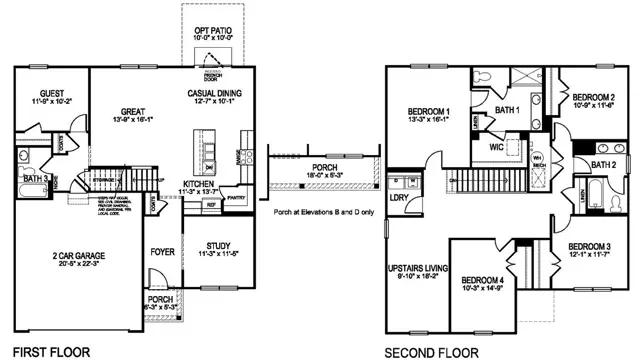
D.R. Horton, Americas Builder, presents the Henley plan. This two-story home provides 5 large bedrooms and 3 full baths. The main level living area offers solid surface flooring throughout for easy maintenance. The staircase enters from the family room for convenience and privacy. The kitchen offers beautiful cabinetry, a large pantry and a built-in island with ample seating space. Also on the main level, you'll find a spacious study, perfect for an office space. Upstairs, you'll find 4 additional bedrooms, including one that features a walk-in closet, as well as a loft/2nd living space that can be used as a great entertainment area. D.R. Horton enhances the value of our homes by providing an industry-leading smart home package - ask for details. Tour the decorated Henley model in Fields at Sugar Creek today!
Stay informed with Livabl updates on new community details and available inventory.