




















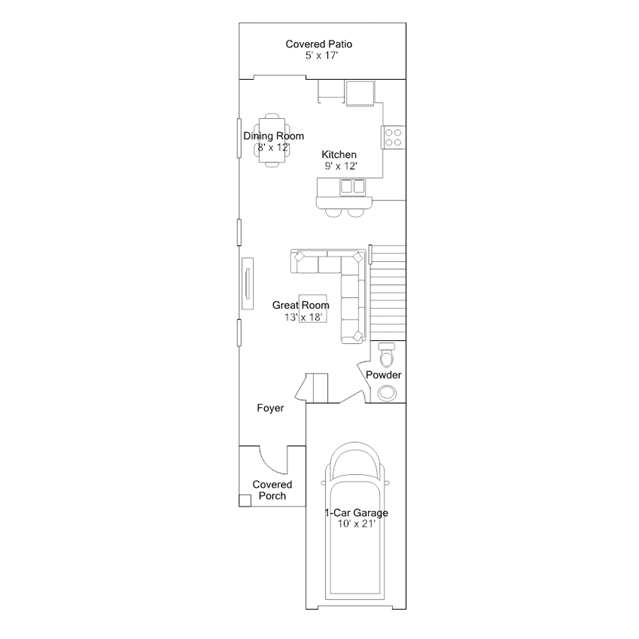
The first floor of this two-story townhome includes the expansive Great Room which has direct access to the cozy dining room, well-equipped kitchen and attached covered patio. Upstairs, a multipurpose loft divides the lavish owners suite from the additional bedroom, both of which feature private bathrooms for convenience.